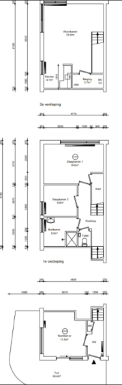
Plattegrond overzicht woning

Huurwoning huren: niet meer beschikbaar Winterjanpad in Amsterdam

  • 99 m2
  • 4 kamers
  • 20 Per direct
  • 31 Bepaalde tijd
Op deze pagina vind je alle informatie over deze Huurwoning in Amsterdam. Als je vragen hebt kun je contact opnemen met de aanbieder.

Ik Heb mijn huis beschikbaar in Amsterdam Noord, De Bongerd (Tuindorp Oostzaan). Totale oppervlakte is 99m2, verdeeld over 3 woonlagen.
Inschrijving op het adres is mogelijk via huisbewaring.

Het is een energiezuinige woning met een goede isolatie, dus weinig stookkosten. Er zijn 3 slaapkamers en een voortuin.
Huis kan gemeubileerd geleverd worden. De huurprijs is excl. gas/licht/water/WIFI/internet.

Een kindvriendelijke, rustige en groene omgeving. De pont NDSM en bushalte richting Station Sloterdijk en de Noord-/Zuidlijn zijn op loopafstand. Gratis parkeren.

De supermarkt De Plus en AH zijn op loopafstand. School is om de hoek.

Lees meer met een pakket!

Algemene informatie

Soort: Huis
Stad Amsterdam
Wijk/buurt: Tuindorp Oostzaan
Inschrijven gemeente: Ja
Opleverniveau: Gemeubileerd
Huisgenoten: Geen
Bezichtiging In overleg

Faciliteiten

Eigen badkamer
Eigen keuken
Eigen toilet
Eigen voordeur
Eigen woonkamer
Afvalstoffenheffing
Geen balkon
Binnen roken
Blusapparaat
Eigen parkeerplek
Eigen droger
Eigen fietsenberging
Gratis parkeren
Huisdieren welkom
Huurtoeslag
Intercom
Lift
Ligbad
Rookmelder
Schoonmaker
Terras
Eigen tuin
Vaatwasser
Wasdroger
Wasmachine
Waterschapsbelasting

Gewenste huurder

Minimum leeftijd: 25
Maximum leeftijd: 60
Geslacht: Maakt niet uit
Status: Professional
Tonen op kaart